Ý tưởng chính của căn nhà là tạo ra một không gian ấm cúng, yên bình cho gia đình.
Dự án có tổng diện tích 295 m2 với 3 tầng và 1 mái, được xây dựng năm 2019.


...với phong cách thiết kế kiến trúc đơn giản pha trộn hướng truyền thống trong kiến trúc Việt Nam và lối thiết kế theo phong cách hiện đại đơn giản.

Điều này được phản ánh trong trang trí những bức tường tại tầng 1 với gỗ sồi truyền thống, hoặc trên đầu giường của phòng ngủ.

Chất liệu terrazzo được sử dụng trong thiết kế sàn, hành lang và cầu thang tạo ra một bầu không khí mát mẻ dễ chịu.

Màu sắc tương phản cũng với vật liệu gỗ tạo ra sự hài hòa trong toàn bộ không gian.

Loài hoa được sử dụng trong thiết kế cảnh quan là hoa Thiên điểu. Loài hoa này được cho là biểu tượng của sự tự do, xinh đẹp và gia đình.

Tầng 1 của căn nhà là không gian sinh hoạt chung cho cả gia đình, vườn trước, vườn sau, ở giữa là không gian sinh hoạt chính...

...với thiết kế như là một khu chức năng bao quanh phòng khách, bếp, phòng ăn và một toilet nhỏ.

Các khu vực chức năng chính được phân chia không phải bởi các phân vùng mà thông qua việc sử dụng độ cao sàn khác nhau, tạo cảm giác thú vị và không bị nhàm chán khi chủ sở hữu đi trên cùng một tầng.

Tầng 2 có phòng ngủ của bố mẹ, tầng này có phòng thay đồ riêng và có nhà vệ sinh trong phòng.

Căn phòng có hai góc nhìn, một là ban công nhìn xuống đường và một là cửa sổ nhìn xuống vườn sau.

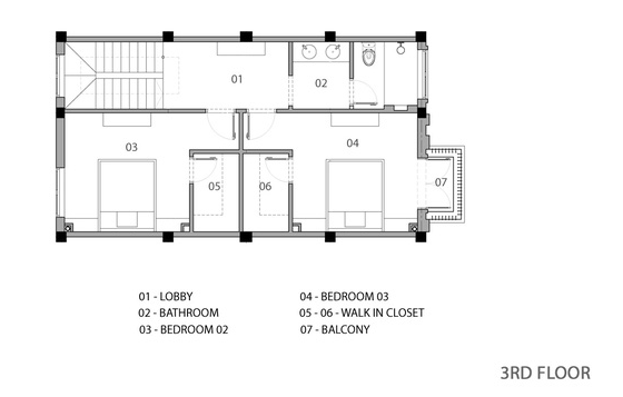
Tầng 3 có 2 phòng ngủ cho 2 đứa trẻ. Mỗi phòng đều có cửa sổ thông gió tự nhiên và phòng thay đồ. Phòng tắm chung bên ngoài khá lớn, có chậu rửa riêng biệt tiện lợi. Tầng mái được thiết kế để đặt máy giặt và sấy khô cũng như phòng lưu trữ đồ gia dụng. Sân thượng ngoài trời là sân phơi và bố trí hệ thống kỹ thuật.


Sơ đồ bố trí trong căn nhà.
NỔI BẬT TRANG CHỦ
-
Elon Musk nói đi học Y là vô nghĩa, chuyên gia phản ứng gay gắt
Tỷ phú Elon Musk vừa đưa ra tuyên bố cho rằng việc học ngành y là vô nghĩa khi robot Optimus sẽ thay thế bác sĩ ngoại khoa giỏi nhất, nhận định này lập tức nhận về rất nhiều phản bác vì tính thiếu thực tế ngành y học.
-
Lần đầu tiên, sinh viên Việt Nam phải đắn đo giữa MacBook và Windows ở cùng mức giá 16 triệu đồng